Sign up to get new listings emailed daily! JOIN SIGN IN
Patty Garrison, DRE#01121864, REALTOR®
(805) 471-0680

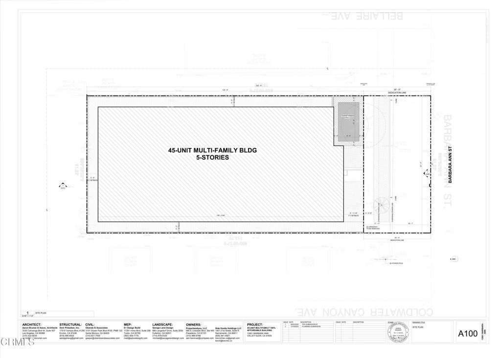
12801 Barbara Ann Street, North Hollywood, CA 91605

$1,299,000
  • 12801 Barbara Ann Street, North Hollywood, CA 91605 Main Photo

11 Total Photos [Click to View All]

Active
LOT SIZE 0.218 acres MLS#P1-25348
STATUSActive PROPERTY TYPELand - Lot/Land SUBDIVISIONNot Applicable

Listing Courtesy of: COMPASS
Agency Phone: (626) 205-4040
Associate Name: Ashrif Hammad
IDX logo


Listing Shown by: Farrell Smyth, Inc.
Associate Name: Patty Garrison, DRE#01121864, REALTOR®


Property Description

12801 Barbara Ann St, Valley Glen, CA 91605New Affordable Housing Development Opportunity - To be sold with RTI PlansShovel-ready project in Valley Glen featuring 45 units:43 one-bedrooms1 studio1 three-bedroom replacement unitRTI plans and covenant available upon request. Site also offers potential for two future ADUs.A rare chance to acquire a fully entitled, ready-to-build affordable housing development in a strong rental market.

12801 Barbara Ann Street | MLS# P1-25348

This land located at 12801 Barbara Ann Street, North Hollywood, CA 91605 is currently listed for sale with an asking price of $1,299,000. The property has approximately 0.22 Acres. Search North Hollywood real estate on pattygarrison.farrellsmyth.com today.

Property Features

Property Type: Land - Lot/Land
Lot Size: 0.22 Acres

Feature Descriptions

Community Features: Curbs
Days on Site: 101
Exclusions: permits
Fencing: None
Lot: Sprinklers None
Parcel#: 2324006055
Sewer: Public Sewer
Water: Public

Listed By / Shown By

Listed By

Agency Name: COMPASS
Agency Phone: (626) 205-4040
Agent Name: Ashrif Hammad

agent picture

Shown By

Agent Name: Patty Garrison, DRE#01121864, REALTOR®
Agent Phone: (805) 471-0680
Agency Title: Farrell Smyth, Inc.

IDX logo

Estimate Your Payment

Estimated Payment

$ 3,269.89 per month $2,891.01 Principal & Interest $0.00 Property Tax (data not provided by mls) $378.88 Homeowner's Insurance

Change Payment Information

%
years/fixed
yearly
yearly (est.)
(Payments are an estimate and may vary by lender)
Disclaimer: All information deemed reliable but not guaranteed. All properties are subject to prior sale, change or withdrawal. Neither listing broker(s) or information provider(s) shall be responsible for any typographical errors, misinformation, misprints and shall be held totally harmless. Listing(s) information is provided for consumers personal, non-commercial use and may not be used for any purpose other than to identify prospective properties consumers may be interested in purchasing. Information on this site was last updated 04/19/2026. The listing information on this page last changed on 04/19/2026. The data relating to real estate for sale on this website comes in part from the Internet Data Exchange program of Delta Media Group MLS (last updated Sun 04/19/2026 12:00:23 AM EST) or CRMLS (last updated Sat 04/18/2026 11:50:03 PM EST). Real estate listings held by brokerage firms other than Farrell Smyth, Inc. may be marked with the Internet Data Exchange logo and detailed information about those properties will include the name of the listing broker(s) when required by the MLS. All rights reserved.
Privacy Policy / DMCA Notice / ADA Accessibility

Login to My Homefinder

Pixel